Product Series
推薦產品
河南華東起重機械設備公司
服務熱線:400 086 9590
公司:河南華東起重機械設備有限公司
聯系人:賈經理
聯系電話:13903802779
地址:河南新鄉市封丘縣起重機工業園區
當前位置: 起重機 > 起重機文章
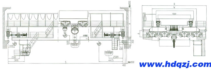
QD型200/50噸電動雙梁吊鉤橋式起重機技術參數表
時間:2024-04-15來源:起重機廠家瀏覽次數:1
QD型200/50噸電動雙梁吊鉤橋式起重機方案圖
QD型200/50噸電動雙梁吊鉤橋式起重機技術規格參數:
|
工作級別 |
A5 |
|||||||||
|
跨度 |
m |
13 |
16 |
19 |
22 |
25 |
28 |
31 |
||
|
起重機重量 |
t |
143 |
149 |
158 |
169 |
181 |
192 |
209 |
||
|
輪壓 |
kN |
355 |
375 |
385 |
400 |
415 |
425 |
445 |
||
|
起升高度 |
m |
22/24 |
||||||||
|
速度 |
起重機運行 |
m/min |
52.3 |
|||||||
|
小車運行 |
28.6 |
|||||||||
|
主起升 |
2.7 |
|||||||||
|
副起升 |
6.2 |
|||||||||
|
電動機 |
起重機運行 |
YZR180L-6/4x17kw |
||||||||
|
小車運行 |
YZR200L-6/26kw |
|||||||||
|
起升 |
YZR355M-10/110kw |
|||||||||
|
副起升 |
YZR280S-8/51kw |
|||||||||
|
主要尺寸 |
A |
mm |
1200 |
|||||||
|
B |
11300 |
|||||||||
|
H |
5199 |
5201 |
5203 |
5205 |
5207 |
5209 |
5211 |
|||
|
H3 |
1570 |
1570 |
1570 |
1570 |
1570 |
1570 |
1570 |
|||
|
F |
396 |
400 |
600 |
607 |
807 |
813 |
1024 |
|||
|
W |
7620 |
|||||||||
|
薦用軌道 |
QU100 QU120 |
|||||||||
-
29
2025-07
橋式起重機分布式控制系統的架構設計與工程實踐
在現代工業物流場景中,橋式起重機的分布式控制系統通過分層架構與模塊化設計,實現多機構協同控制與故障冗余,顯著提升設備可靠性與運維效率。以下從系統架構、關鍵技術、實施要點及典型應用展開分析,為工程改造與新建項目提供可落地的技術方案。一、分布式控制系統的核心架構分布式控制系統(DCS)采用 “管理層 - 控制層 - 設備層” 三級網絡拓撲,通過工業總線實現數據交互與指令下發。具體包括:管理層以工控機(...詳細
-
29
2025-07
橋式起重機卷揚機構雙制動技術解析
雙制動系統是橋式起重機卷揚機構保障安全的核心配置,通過主副制動器協同作用實現冗余制動。以下從技術實現與工程應用展開說明:一、核心制動機制與協同控制主副制動器組合方案主制動器:采用液壓推桿式雙閘瓦制動器,通過液壓油缸驅動閘瓦抱緊制動盤,響應時間≤0.3 秒,制動力矩可達額定值的 1.5 倍。例如,某鋼廠起重機主制動器在 20 噸載荷下制動距離≤0.5 米。輔助制動器:配置電磁盤式制動器,斷電時彈簧驅...詳細
-
29
2025-07
橋式起重機重載萬向聯軸器技術解析
重載萬向聯軸器是橋式起重機實現多軸協同傳動的核心部件,通過特殊結構設計實現大扭矩傳遞與角度補償。以下從技術實現與工程應用展開說明:一、核心傳動機制與結構設計十字軸式聯軸器采用整體式叉頭結構(如 SWC 型),通過十字軸與軸承組件傳遞扭矩,允許軸線折角達 15°。例如,某鋼廠 32 噸起重機使用 SWC 型聯軸器,在吊運鋼錠時可補償因軌道不平導致的軸線偏移,確保傳動穩定性。球籠式聯軸器通過球籠外環與...詳細
-
01
2025-07
橋式起重機與電動葫蘆有什么區別?
在當今高速發展的工業環境中,生產效率和作業安全成為了企業生存和發展的核心要素。為了滿足這一需求,高效的物料搬運設備扮演著zhi關重要的角色。這些設備不僅能夠大幅度提升物料的搬運速度和準確性,還能顯著減少人力成本和勞動強度,從而降低了因人工操作不當而引發事故的風險。如:橋式起重機和電動葫蘆作為兩種常見的起重設備,各自發揮著不可或缺的作用。一、橋式起重機:重載**橋式起重機是一種大型的起重機械,主要由...詳細
-
25
2025-06
垃圾抓斗橋式起重機全自動運行模式
在全自動模式下,全自動垃圾抓斗橋式起重機有四個工藝過程: 優先級:自動上料 > 進料掃描 > 自動移料 > 自動倒跺(1)自動上料(1)自動移料(1)自動倒跺如果自動上料、自動移料、自動倒跺三個按鈕都是1,則自動上料優先,其次進料掃描,再次自動移料,然后是自動倒跺。之喲啊自動上料信號是1,抓料取料區為上料區(0)自動上料(1)自動移料(1)自動倒跺如果自動上料信號為0,自動移料、自動倒跺是1,則抓...詳細
-
24
2025-06
單梁橋式起重機,單梁懸掛起重機及故障處理方法
在眾多起重機選擇的市場中,如何選擇一臺**的起重機是一定的規律。對于不同的環境,起重機的選擇也不同。在不同的需求中,起重機的選擇更為重要。在了解了相關起重機的性能后,選擇更為正確。 為了不影響作業,當一個工作區域不允許有任何支撐結構時,懸掛式單梁起重機是一個**的選擇。起重機系統要求屋頂結構承受足夠的強度,以**支撐起重機荷載。客戶可以在一組固定軌道上安裝多個主梁,大大提高了生產效率。該類產品為...詳細




















