Product Series
推薦產品
河南華東起重機械設備公司
服務熱線:400 086 9590
公司:河南華東起重機械設備有限公司
聯系人:賈經理
聯系電話:13903802779
地址:河南新鄉市封丘縣起重機工業園區
當前位置: 起重機 > 起重機文章
MDG型單主梁門式起重機
時間:2024-04-28來源:起重機廠家瀏覽次數:1
產品描述
MH箱式單梁門式起重機與CD MD等型號的電動葫蘆配套使用,是一種有軌運行的中小型起重機,其適用起重量3-32噸,適用跨度12-30米,工作環境-20℃--+40℃內。本品為一般用途起重機,多用于露天場所及倉庫的裝卸或抓取物料,有地面操縱和室內操縱兩種形式。
本產品為一般用途起重機,多用于露天場所及倉庫的裝卸或抓取物料。有地操和空操兩種方式,上述價格為地面操控,不含電動葫蘆,橫擔或馬鞍形式另算。大車導電形式有大車導電架和電纜卷筒兩種,由用戶任選一種,電纜卷筒規格及安裝位置視具體情況選擇。
產品參數概述
MH單梁門式起重機起重量是5t;有12m,16m,20m,24m,30m等五種標準跨度;起升高度有6.9m,9m兩種。
產品參數:
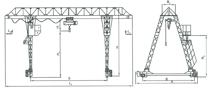
Lifting weight 起重量 | 跨度 Span | 起升高度 Lift Height | 懸臂長度 hanging arm length | 工作制度 working system | 電動葫蘆 Electric Hoist | 運行機構 Travel Mechanism | 薦用軌道型號 Special track type | 主要尺寸 (mm) Main Size | 備注 Note | |||||||||||||
S | H2 | 型號 Type | 起升速度 Lift speed | 運行速度 Travel speed
| 運行速度 Travel speed | 減速機 Decelerator | 電動機 Motor | 總長度 Total length | 吊鉤極限位置 Hook Limit Position | 操縱室至軌道面距離 Distance Between Operation Room and Track | 輪距Wheel Distance | 橫梁 Crossbeam | 支腿上部中心 Center Distance for suport upper pat | 總高 Total Height | ||||||||
型號 type | 功率 power | |||||||||||||||||||||
噸 T | 米 Meter | 米/分 Meter/s | 千瓦 kw | L2 | H1 | i1 | i2 | H3 | B | B1 | B2 | H | ||||||||||
3 | 10 | 6 | 3 | A5 | CD1;MD1 | 8 ; 8/0.8 | 20(30)
| 30 | ZSC400-Ⅲ3/4/37.33 | YZR132M2-6 | 4×2 | P43 | 16 | 1160 | 600 | 650 | 4500 | 5644 | 6240 | 1400 | 9120 | 不同噸位與跨度及不同起升高度的總重和輪壓見隨機圖紙 |
5 | 10 | 3 | 16 | |||||||||||||||||||
10 |
| 6 9 10 | 3 | 7 ; 7/0.7 | ZSC600-Ⅳ3/4/46.7 | YZR160M1-6 | 6.3×2 | 16 | 1600 | 700 | 750 | 5190 | 5830 | 1450 | 10550 | |||||||
產品結構:




















