Product Series
推薦產品
河南華東起重機械設備公司
服務熱線:400 086 9590
公司:河南華東起重機械設備有限公司
聯系人:賈經理
聯系電話:13903802779
地址:河南新鄉市封丘縣起重機工業園區
當前位置: 起重機 > 起重機文章
MDG單主梁吊鉤門式起重機、MG型雙主梁吊鉤門式起重機
時間:2024-05-10來源:起重機廠家瀏覽次數:1
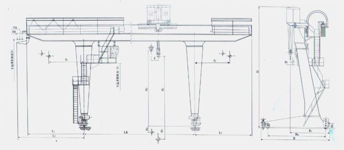
MDG單主梁吊鉤門式起重機

1、本系列起重機有5噸、10噸、16/3.2噸、20/5噸及 32/5噸等5種標準起重量:18米、22米、26米、30米及35米等5種標準跨度。
其中,32萬噸只列出了 30米和 35米兩種跨度的有關數據。
2、本系列起重機有滑線供電和電纜供電兩種基本供電方式,圖表中的數據以滑線供電為準。
3、起重量為32/5噸時,大車運行采用臺車結構(共8個大輪),圖中未示。
4、起重量小于或等于20/5噸時,小車采取垂直反滾輪形式;起重量為32/5噸的,小車采用水平反滾輪。本圖為垂直反滾輪。
5、起重量為32/5噸時,電控設備集中安裝在一個電氣房內。電氣房以支腿與司機室對置,圖中未示。
6.本產品起升高度分為起重機軌面以上及以下兩部分,請用戶務必注意。
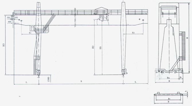
MG型雙主梁吊鉤門式起重機

一、雙梁吊鉤門式起重機適用露天倉庫、料場、鐵路貨站、港口碼頭等裝卸搬運。還可以配以多種專用鉤具進行多種特殊作業。
二、起重機有橋架、大車運行機構、小車、電器設備等組成。橋架采用箱型雙梁焊接結構,大車運行機構采用分別驅動,全部機構均在操縱室操縱。
三、起重機導電形式分為電纜和滑線兩種,用戶可任選一種,圖表中數據以滑線為準。
四、本系統起重機正常使用的環境應在一25℃~+40℃范圍內,24小時內的平均溫度不得超過十35℃。其它安裝使用地點的海拔高度不得超過2000米,超過1000米的應對電動機容量進行校核。
五、起重機5t-200t,所有跨度:起重機16/3.2t,跨度18m、22m、26m; 起重量 20/5t,跨度 18m、22m的起重機下橫梁結構為右圖。




















