Product Series
推薦產品
河南華東起重機械設備公司
服務熱線:400 086 9590
公司:河南華東起重機械設備有限公司
聯系人:賈經理
聯系電話:13903802779
地址:河南新鄉市封丘縣起重機工業園區
當前位置: 起重機 > 起重機文章
YZ型橋式鑄造起重機技術參數
時間:2024-05-25來源:起重機廠家瀏覽次數:1
鑄造起重機產品介紹:
YZ型冶金鑄造橋式起重機是煉鋼連鑄工藝中的主要設備之一。主要用于轉爐加料跨向轉爐兌鐵水,在精煉跨將鋼水吊運至精煉爐或在鋼水跨將鋼水吊運至連鑄回轉大包臺上。
YZ型冶金鑄造起重機總體構造可分為:雙梁雙軌、四梁四軌、四梁六軌等形式。雙梁雙軌和四梁四軌形式一般用于中、大噸位鑄造起重機,四梁六軌雙小車形式一般用于特大噸位鑄造起重機。
冶金鑄造起重機是我廠生產的主導產品之一。本公司設計制造的冶金鑄造起重機技術x進、結構新穎、安全可靠、經濟耐用、維護簡單。
我公司生產的YZ型冶金鑄造起重機可以根據用戶要求,提供如下功能:
1.各機構可調速;
2.吊具可旋轉;
3.龍門鉤鉤距可變;
4.超載限制及報警;
5.載荷的稱重及顯示、PLC控制及故障檢測、顯示、記錄和打印系統;
6.防止同跨起重機之間的碰撞。
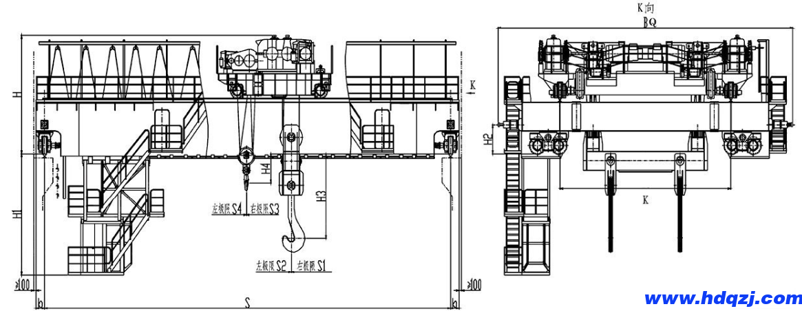
鑄造起重機結構簡圖:

YZ型橋式鑄造起重機參數表





















