Product Series
推薦產品
河南華東起重機械設備公司
服務熱線:400 086 9590
公司:河南華東起重機械設備有限公司
聯系人:賈經理
聯系電話:13903802779
地址:河南新鄉市封丘縣起重機工業園區
當前位置: 起重機 > 起重機文章
QY型雙梁絕緣橋式起重機技術參數
時間:2024-05-25來源:起重機廠家瀏覽次數:1
絕緣吊鉤雙梁起重機產品介紹:
QY型絕緣吊鉤雙梁橋式起重機主要由橋架、大車運行機構、小車、電氣設備等組成,為了防止在工作過程中帶電設備上的電流可能通過被吊運的構件傳到起重機上,危及司機的生命及設備的安全,故在起重機的適當部位設置了幾道絕緣裝置。為確保起吊安全,起升機構配有雙制動器。 該起重機的動作操作全部在司機室內完成。本起重機均為重級工作制。
QY型絕緣吊鉤橋式起重機適用于有色金屬電解鋁、鎂、鉛、鋅等冶煉車間。
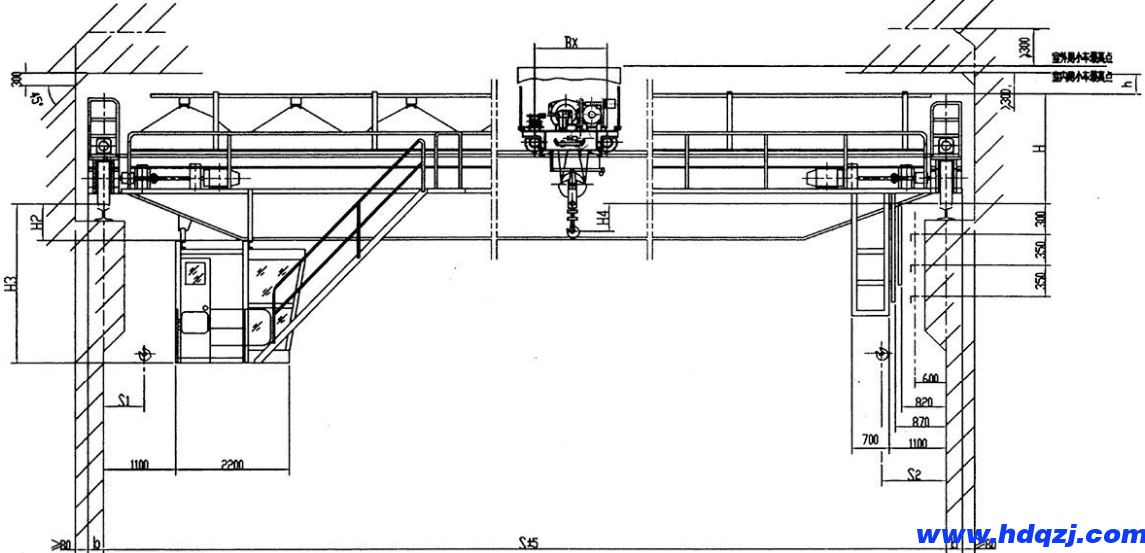
絕緣吊鉤雙梁橋式起重機結構簡圖:


QY型雙梁絕緣橋式起重機參數表


上一篇:YZ型橋式鑄造起重機技術參數
下一篇:QL型電磁掛梁橋式起重機技術參數
推薦文章:




















