Product Series
推薦產品
河南華東起重機械設備公司
服務熱線:400 086 9590
公司:河南華東起重機械設備有限公司
聯系人:賈經理
聯系電話:13903802779
地址:河南新鄉市封丘縣起重機工業園區
當前位置: 起重機 > 起重機文章
L型32t/5t單主梁吊鉤門式起重機參數L型32噸偏掛門式起重機尺寸
時間:2024-01-18來源:起重機廠家瀏覽次數:1
32噸偏掛門式起重機參數尺寸
L型32t/5t單主梁吊鉤門式起重機主要技術參數及尺寸,L型32噸偏掛門式起重機主要技術參數及尺寸,L型32t/5t單主梁偏掛門式起重機技術參數表,L型32t/5t單主梁偏掛門式起重機外形尺寸表,32噸偏掛門式起重機主要技術參數及尺寸
32噸偏掛門式起重機圖片
32噸偏掛門式起重機產品介紹
1.L型32t/5t單主梁吊鉤門式起重機適用于露天貨場、鐵路沿線進行一般的裝卸吊裝及起重搬運工作。
2.L型32t/5tt龍門吊因結構特點,在起升高度一定的情況下,整機的高度有所降低,節約了成本。
3 .L型32t/5tt龍門吊起重機自重輕,輪壓小,性能可靠。
Introduction:
L Type Single Girder Gantry Crane is opplid to general materials handling service in outdoor freight yard or along
railway lines,such as loading, unloading, lifting and transferring work.
Given certain lift height,theoverrall height ofL Type Gantry Crane is reduced out of its structural features. As a
result, the cost is lowered.
L Type Gantry Crane is featured by Light deadweightjight wheel load and reliable performance.
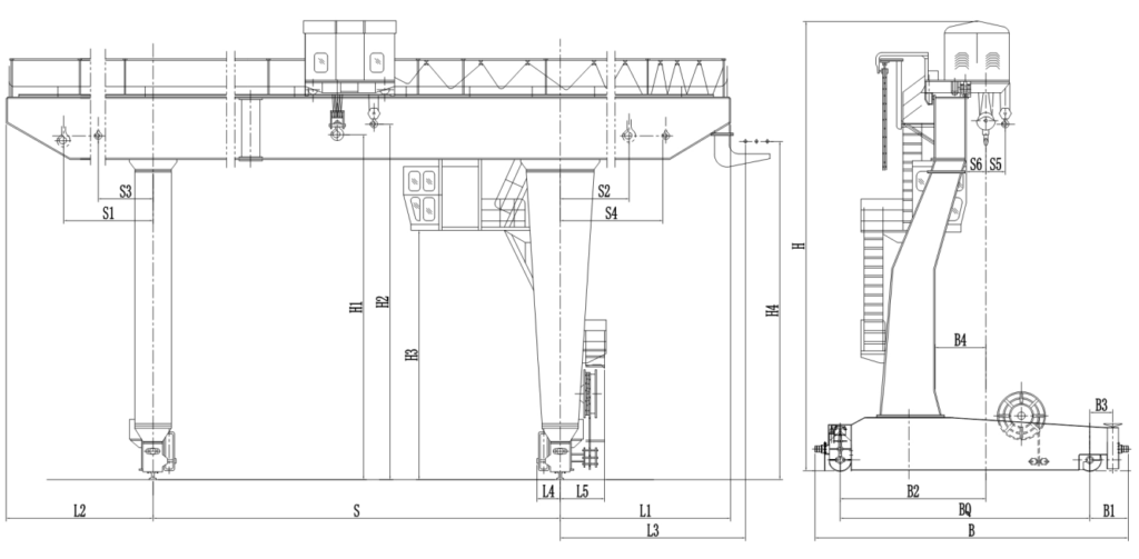
32噸偏掛門式起重機結構圖
32噸偏掛門式起重機技術參數
| 起重量 Cap | 主鉤 Mam | t | 32噸 | ||||
| 副鉤 Auxiliary | 5噸 | ||||||
| 跨度 Span | m | 18 | 22 | 26 | 30 | 35 | |
| 起升高度 Lifting Height | 10 | 11 | |||||
| 10.8 | 11.8 | ||||||
| 工作制度Duty | A5 | ||||||
| 速度Speed | 主 鉤Mam | m/min | 7.6 | ||||
| 副 鉤 Auxiliary | 11.9 | ||||||
| 小車運行 Crab travelling | 38.6 | ||||||
| 大車運行 Trolley travelling | 39 | 38 | |||||
|
極限尺寸 Limt dimenstion |
L1 | mm | 8000 | 10000 | |||
| L2 | 8000 | 10000 | |||||
| L | 980 (兩吊鉤平行主梁) | ||||||
| C1 | 5000 | 7000 | |||||
| C2 | 5000 | 7000 | |||||
|
主要尺寸 Main dimenstion |
H | 14380 | 14380 | 15500 | |||
| H1 | 10 | 11 | |||||
| H2 | 800 | ||||||
| H3 | 763 | 590 | |||||
| B | 10006 | 11800 | |||||
| W | 8000 | 8500 | |||||
| K | 一 | ||||||
| L3 | 780 | ||||||
| 最大輪壓 Max.Wheel Loading | kN | 210 | 215 | 225 | 230 | 235 | |
| 電機總功率Total Power | kw | 108 | 116 | ||||
| 薦用號岡軌 Crane Rail Recommended | QU80 | ||||||
| 電 源 Power Supply | I 三相交流 3-Phase A.C.50HZ380V | ||||||
-
04
2024-10
MHL型電動葫蘆偏掛門式起重機技術參數、電動葫蘆門式起重機規格型號
MHL型電動葫蘆偏掛門式起重機技術參數電動葫蘆偏掛起重機工作級別:A3/M3; 電動葫蘆偏掛起重機起升速度:8m/min 、7M/MIN 、3.5M/MIN,可定做雙速(起升快慢雙速);電動葫蘆偏掛起重機運行速度:小車運行:20m/min,30M/MIN,大車運行:20m/min,30M/MIN;電動葫蘆偏掛起重...詳細
-
07
2024-05
軌道門式起重機,偏掛門式起重機
軌道門式起重機軌道門式起重機的技術與安全: 1、軌道的安全檢查:檢查軌道、螺栓、夾板有無裂紋、松脫和腐蝕,如發現裂紋應及時更換,如有其余缺陷應及時修復,主要檢查工具用線路軌道探傷儀。 2、軌道的測量與調整: (1)軌道的直線性,可用拉鋼絲的方法檢查,即在軌道的兩端車檔上拉一根0.5mm的鋼絲,然后用吊線錘的方法來逐點測量,測點間隔可在2m左右。 (2)軌道的標高,可用水平儀測量。 (3)...詳細
-
18
2024-01
5噸MDG型偏掛門式起重機技術參數10噸偏掛門式起重機參數表
MDG型單梁門式起重機也稱為L型偏掛門式起重機,是常用的一種單主梁門式起重機,用于室外貨場或者生產線,小編為大家介紹下5噸、10噸MDG型單梁門式起重機技術參數。 MDG型單梁門式起重機結構圖 5噸、10噸MDG型單梁門式起重機技術參數表: 起重量 Li...詳細
-
18
2024-01
L型20t/5t單主梁吊鉤門式起重機參數L型20噸偏掛門式起重機尺寸
20噸偏掛門式起重機參數尺寸 L型20t/5t單主梁吊鉤門式起重機主要技術參數及尺寸,L型20噸偏掛門式起重機主要技術參數及尺寸,L型20t/5t單主梁偏掛門式起重機技術參數表,L型20t/5t單主梁偏掛門式起重機外形尺寸表,20噸偏掛門式起重機主要技術參數及尺寸 20噸偏掛門式起重機圖片 20噸偏掛門式起重機產品介紹 單梁偏掛門式起重機小車在一根單主梁上運行,通過...詳細
-
18
2024-01
L型5t單主梁吊鉤門式起重機參數MGD型5噸偏掛門式起重機尺寸
5噸偏掛門式起重機參數尺寸 L型5t單主梁吊鉤門式起重機主要技術參數及尺寸,5噸偏掛門式起重機主要技術參數及尺寸,L型5t單主梁偏掛門式起重機技術參數表,L型5t單主梁偏掛門式起重機外形尺寸表,5噸偏掛起重機主要技術參數及尺寸 5噸偏掛門式起重機圖片 5噸偏掛門式起重機規格型號: 單梁偏掛門式起重機型號:MDG型、MDGL型、MDGC型、C型、L型;偏掛起重機起重量...詳細
-
18
2024-01
L型32t/5t單主梁吊鉤門式起重機參數L型32噸偏掛門式起重機尺寸
32噸偏掛門式起重機參數尺寸 L型32t/5t單主梁吊鉤門式起重機主要技術參數及尺寸,L型32噸偏掛門式起重機主要技術參數及尺寸,L型32t/5t單主梁偏掛門式起重機技術參數表,L型32t/5t單主梁偏掛門式起重機外形尺寸表,32噸偏掛門式起重機主要技術參數及尺寸 32噸偏掛門式起重機圖片 32噸偏掛門式起重機產品介紹 1.L型32t/5t單主梁吊鉤門式起重機適用...詳細




















