Product Series
推薦產品
河南華東起重機械設備公司
服務熱線:400 086 9590
公司:河南華東起重機械設備有限公司
聯系人:賈經理
聯系電話:13903802779
地址:河南新鄉市封丘縣起重機工業園區
當前位置: 起重機 > 起重機文章
5噸MDG型偏掛門式起重機技術參數10噸偏掛門式起重機參數表
時間:2024-01-18來源:起重機廠家瀏覽次數:1
MDG型單梁門式起重機也稱為L型偏掛門式起重機,是常用的一種單主梁門式起重機,用于室外貨場或者生產線,小編為大家介紹下5噸、10噸MDG型單梁門式起重機技術參數。
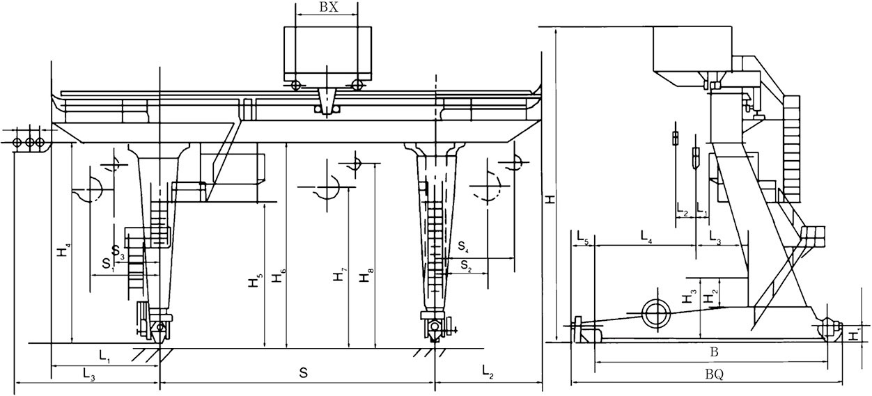
MDG型單梁門式起重機結構圖
5噸、10噸MDG型單梁門式起重機技術參數表:
| 起重量 Lifting Weight | t | 5T | 10T | |||||||||
| 跨度 Span | m | 18M | 22M | 26M | 30M | 35M | 18M | 22M | 26M | 30M | 35M | |
| 起升高度(m)Lift Height | 10M | 11M | 10M | 11M | ||||||||
| 工作制度Working | 中級 | 中級 | ||||||||||
|
速度 Speed |
起升lift | min | 12.75 | 9.82 | ||||||||
| 小車運行 handcar travel | 37.5 | 39.7 | ||||||||||
| 大車運行 crat travel | 46.3 | 40 | 39.5 | 40 | ||||||||
|
電動機 Motor |
起升lift | type/kw | YZR160L-6/11 | YZR200L-8/18.5 | ||||||||
| 小車運行 handcar travel | YZR132M1-6/2.5 | YZR132M2-6/4 | ||||||||||
| 大車運行 crat travel | YZR160M2-6/8.5 | YZR160M2-6/13×2 | YZR160M2-6/8.5×2 | YZR160L-6/13×2 | ||||||||
|
重量 Weight |
小車 Handcart | t | 2.93T | 2.94T | 2.95T | 2.96T | 4.21T | 4.23T | 4.27T | |||
| 總重量TotalWeight | 32.4T | 34.8T | 41T | 49T | 52T | 41.3T | 45T | 48.7T | 58.3T | 62.4T | ||
| 最大輪壓 Max.Wheel Pressure | KN | 160 | 166 | 185 | 213 | 233 | 225 | 236 | 239 | 286 | 298 | |
| 薦用鋼材Steel track | 43kg/m | 43kg/m | ||||||||||
| 電源 Power Supply | 三相交流 3-Phase A.C 50Hz 380V | |||||||||||
5噸、10噸MDG型單梁門式起重機外形尺寸表:
|
起重量 Lifting Weight |
跨度 Span (m) |
尺寸(mm)size | ||||||||||||||||||||||
| B | Bx | BQ | H | H1 | H2 | H3 | H4 | H5 | H6 | H7 | L1 | L2 | L3 | I1 | I2 | I3 | I4 | I5 | S1 | S2 | S3 | S4 | ||
| 5T | 18M | 6000 | 1700 | 7467 | 12889 | 577 | 720 | 1820 | 9610 | 6647 | 9447 | 10000 | 6717 | 6717 | 8074 | 590 | 1920 | 2130 | 865 | 5000 | 5000 | |||
| 22M | 9347 | |||||||||||||||||||||||
| 26M | 7000 | 8529 | 13889 | 660 | 1428 | 2778 | 9530 | 7647 | 9247 | |||||||||||||||
| 30M | 10997 | 2572 | 921 | 7000 | 7000 | |||||||||||||||||||
| 35M | 10360 | 7447 | 9897 | 11000 | 8717 | 8717 | 10074 | 2570 | ||||||||||||||||
| 10T | 16M | 7000 | 2300 | 8283 | 13597 | 660 | 1475 | 2825 | 9950 | 7251 | 9781 | 10000 | 7027 | 7027 | 8380 | 570 | 1800 | 2690 | 921 | 5000 | 5000 | |||
| 22M | 9681 | |||||||||||||||||||||||
| 26M | 7500 | 9029 | 2977 | 10281 | 2904 | |||||||||||||||||||
| 30M | 14545 | 10950 | 7051 | |||||||||||||||||||||
| 36M | 7551 | 10231 | 11000 | 9027 | 9027 | 10380 | 7000 | 7000 | ||||||||||||||||
-
04
2024-10
MHL型電動葫蘆偏掛門式起重機技術參數、電動葫蘆門式起重機規格型號
MHL型電動葫蘆偏掛門式起重機技術參數電動葫蘆偏掛起重機工作級別:A3/M3; 電動葫蘆偏掛起重機起升速度:8m/min 、7M/MIN 、3.5M/MIN,可定做雙速(起升快慢雙速);電動葫蘆偏掛起重機運行速度:小車運行:20m/min,30M/MIN,大車運行:20m/min,30M/MIN;電動葫蘆偏掛起重...詳細
-
07
2024-05
軌道門式起重機,偏掛門式起重機
軌道門式起重機軌道門式起重機的技術與安全: 1、軌道的安全檢查:檢查軌道、螺栓、夾板有無裂紋、松脫和腐蝕,如發現裂紋應及時更換,如有其余缺陷應及時修復,主要檢查工具用線路軌道探傷儀。 2、軌道的測量與調整: (1)軌道的直線性,可用拉鋼絲的方法檢查,即在軌道的兩端車檔上拉一根0.5mm的鋼絲,然后用吊線錘的方法來逐點測量,測點間隔可在2m左右。 (2)軌道的標高,可用水平儀測量。 (3)...詳細
-
18
2024-01
5噸MDG型偏掛門式起重機技術參數10噸偏掛門式起重機參數表
MDG型單梁門式起重機也稱為L型偏掛門式起重機,是常用的一種單主梁門式起重機,用于室外貨場或者生產線,小編為大家介紹下5噸、10噸MDG型單梁門式起重機技術參數。 MDG型單梁門式起重機結構圖 5噸、10噸MDG型單梁門式起重機技術參數表: 起重量 Li...詳細
-
18
2024-01
L型20t/5t單主梁吊鉤門式起重機參數L型20噸偏掛門式起重機尺寸
20噸偏掛門式起重機參數尺寸 L型20t/5t單主梁吊鉤門式起重機主要技術參數及尺寸,L型20噸偏掛門式起重機主要技術參數及尺寸,L型20t/5t單主梁偏掛門式起重機技術參數表,L型20t/5t單主梁偏掛門式起重機外形尺寸表,20噸偏掛門式起重機主要技術參數及尺寸 20噸偏掛門式起重機圖片 20噸偏掛門式起重機產品介紹 單梁偏掛門式起重機小車在一根單主梁上運行,通過...詳細
-
18
2024-01
L型5t單主梁吊鉤門式起重機參數MGD型5噸偏掛門式起重機尺寸
5噸偏掛門式起重機參數尺寸 L型5t單主梁吊鉤門式起重機主要技術參數及尺寸,5噸偏掛門式起重機主要技術參數及尺寸,L型5t單主梁偏掛門式起重機技術參數表,L型5t單主梁偏掛門式起重機外形尺寸表,5噸偏掛起重機主要技術參數及尺寸 5噸偏掛門式起重機圖片 5噸偏掛門式起重機規格型號: 單梁偏掛門式起重機型號:MDG型、MDGL型、MDGC型、C型、L型;偏掛起重機起重量...詳細
-
18
2024-01
L型32t/5t單主梁吊鉤門式起重機參數L型32噸偏掛門式起重機尺寸
32噸偏掛門式起重機參數尺寸 L型32t/5t單主梁吊鉤門式起重機主要技術參數及尺寸,L型32噸偏掛門式起重機主要技術參數及尺寸,L型32t/5t單主梁偏掛門式起重機技術參數表,L型32t/5t單主梁偏掛門式起重機外形尺寸表,32噸偏掛門式起重機主要技術參數及尺寸 32噸偏掛門式起重機圖片 32噸偏掛門式起重機產品介紹 1.L型32t/5t單主梁吊鉤門式起重機適用...詳細




















